2022-08-09

“张而不弛,文武弗能也;弛而不张,文武弗为也。一张一弛,文武之道也。”
——《礼记·杂记下》
项目地址 | 湖南 长沙
项目名称|天城国际
主案设计 | 彭海峰 刘锋


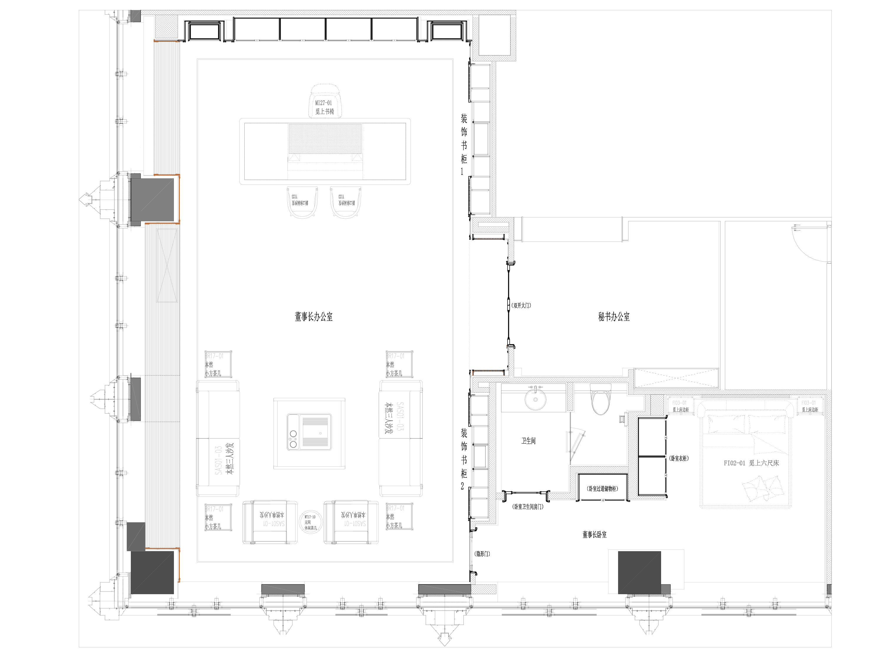
项目平面图
“一张一驰”,在很多时候是用来提醒人们工作、学习要掌握节奏,劳逸结合,这样才能提高效率。而对于一个办公室的室内设计来说,这四个字同样适用。
这是高层区域转角处的一间办公室,两面临窗,视野开阔,极目远眺亦是风景。室内空间宽敞,大开大合。新海派的全屋定制,取舍平衡,讲究对称之美。

推开大门,左右两侧是两面功能完全不同的多宝阁一体柜,但它们在视觉呈现上却是完全对称的,彰显了大度、稳重的非凡气质。

格栅门的设计,镶嵌以金属线,避免了沉闷乏味,充分利用室内良好的光线,形成影影绰绰的自然之美。



办公区,一张中式老板桌,极具海派风格——胡桃木的桌面与白鹭色皮质的抽屉柜搭配,简约时尚,很是气派。老板椅则选用了法式实木皮艺古典椅,雕刻精美,线条流畅,采用了传统的榫卯结构,稳如泰山。老板桌的大气体现了主人驰骋商场的气魄,老板椅的精致则流露了主人高雅的品位与品格。


老板桌的另一侧摆放的两把会客椅则是实木软包,采用了橘色与白鹭色,同样线条简洁,给人以平和、踏实的感受。



而会客区的空间布置,是以那把精美的老板椅为中轴线进行摆放。全实木整料打造的茶几,纹理清晰,做工精湛,流线型边条设计受力均匀,现代自然。一组皮质沙发,云雾色清新脱俗,金属配件带来的质感,精雕细琢——皮质与金属的碰撞,一柔一刚。在这里接待来客,可以是一场激烈的“头脑风暴”,抑或是品一壶好茶,天南海北地闲聊,也是一种调整、放松的方式。


这间办公室还特意配备了一间卧室。工作繁忙的时候,可以有个稍作休憩的地方。因为只是临时使用,且唯一功能是休息,所以卧室的设计和家具选择上以简洁为主。


嵌入式衣柜,中式设计,在体量上满足更换衣服、置放物品的需求。同为白鹭色的大床,床头皮质软包,柔和舒适,造型大气优雅。两侧的棕色皮质床头柜,中西合璧,兼顾了实用性和装饰性。床头上方的一幅水墨画,自有一种云淡风轻任鸟飞的意境。

海派风格与时尚元素的有机融合,张弛之间,亦能营造出一种独特的韵味。办公室的设计不再拘泥于以往的固有模式。随着办公方式的改变,它更看重工作与生活的有机融合,同时从整体上体现企业形象和精神,从而潜移默化地影响着公司员工和每一位前来商谈的客户。
正如这间办公室的设计,从布局到细节,无不彰显着公司掌舵人运筹帷幄的气度和温文尔雅的亲和力。见微知著,也从这间办公室看到了一家企业的文化与发展。